Hyttene

  • Hyttene leveres med høy standard og lekre arkitektoniske detaljer.  Eksklusive materialvalg inne og ute.  Direkte utgang fra alle soverom, samt stue/kjøkken til ferdig støpt platting. Store vindusflater i alle oppholdsrom som slipper det vakre lyset og utsikten inn.

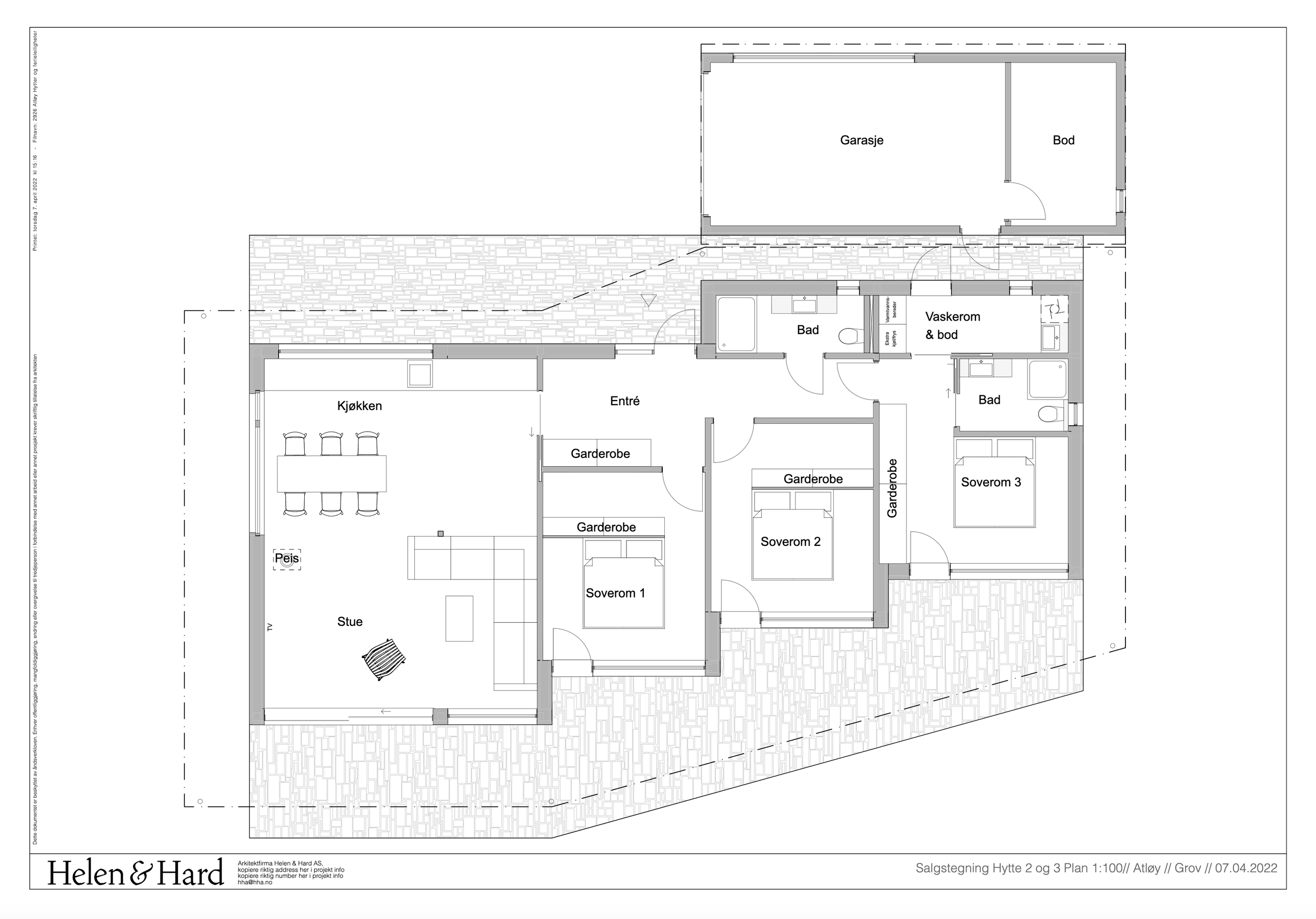
  • 122 m2 med romslig planløsning

  • 3 soverom, 2 bad og eget bod/vaskerom. 

Utvendig

  • Ferdigbehandlet kledning med spor.

  • Aluminiumskledde vinduer og dører i sort fra Nordvestvinduet.

  • Lekker inngangsdør med skjulte hengsler og sidefelt i glass.

  • Sedum taktekke på toppen av det langstrakte lekre desingtaket.

  • Betongplatting utenfor hovedfasade mot sjøen og ved inngangsparti.

  • Utvendig belysning og stikkontakter.

Innvendig

  • Tak og vegger leveres med lekker kvistfri furu glattpanel, hvitpigmentert fra toppleverandøren Bergene Holm as.

  • Listefri løsning mot himling, vinduer og dører.  Gulvlister leveres i samme overflate som panel.  

  • Innvendige dører i slett sort utførelse.

  • Slipt betonggulv fra Jølster Betongbygg i alle oppholdsrom.

  • Bad leveres med lekre fliser på gulv og vegger fra Casalgrande. Takdusj, armaturer i sort, dusjvegger i glass og sorte profiler, vegghengt toalett og baderomsinnredning fra Foss bad.

  • Bod/vaskerom leveres med fliser på gulv og opplegg til vaskemaskin og tørketrommel, samt servant og servantbatteri.

  • Varmekabler i alle gulv.

  • Lekker moderne sort kjøkkeninnredning, levert av Strai kjøkken. Integrerte hvitevarer fra kvalitetsleverandører, innebygget vifte i koketopp, integrert kjøl/frys, oppvaskmaskin og stekeovn.  

  • Downlights i tak.

  • Hovedsoverom med eget bad og garderobe.

  • Soverom 1 og 2 har mange innredningsmuligheter. På plantegning og vist eksempel med egen «walk in closet».  

  • Lekker peisovn fra Contura i stue med stålpipe.